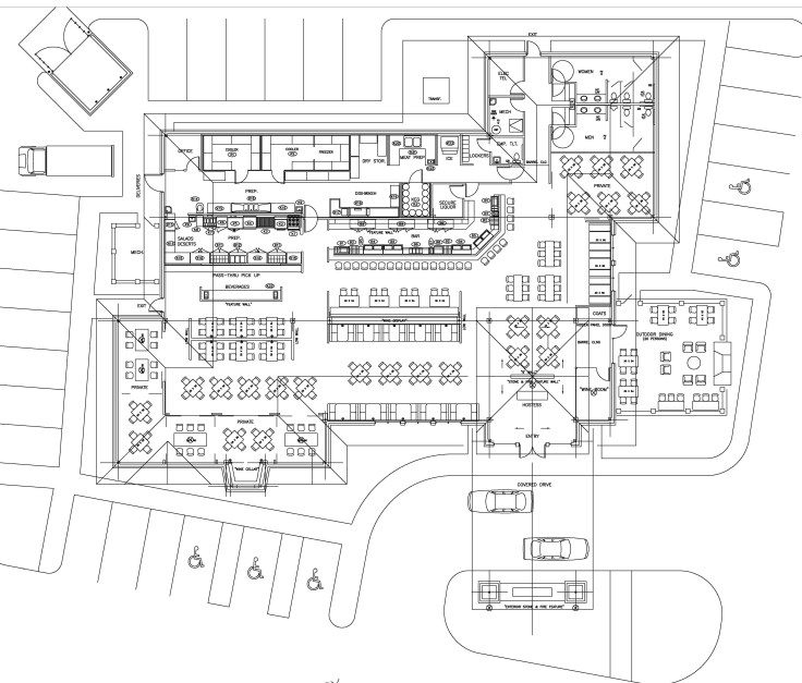
Commercial Furniture Plan Systems Furniture Plans Systems Furniture Plan Furniture Plan by NH Studios February 21, 2018 0